Ohne Baustress ins Eigenheim: schlüsselfertige Neubau-Doppelhaushälfte für die junge Familie

18107 Rostock, Doppelhaushälfte zum Kauf

Virtueller Rundgang

Kontaktdaten

Christian Konarski, IPN Immobilien GmbH

Objektdaten

  • Objekt-ID
    1887
  • Objekttypen
    Doppelhaushälfte, Haus
  • Adresse
    Musknips 16
    18107 Rostock
  • Etagen im Haus
    2
  • Wohnfläche ca.
    127 m²
  • Nutzfläche ca.
    133 m²
  • Grund­stück ca.
    375 m²
  • Zimmer
    5
  • Schlafzimmer
    3
  • Badezimmer
    2
  • Separate WC
    2
  • Terrassen
    1
  • Heizungsart
    Zentralheizung, Fußbodenheizung
  • Wesentlicher Energieträger
    Wärmepumpe
  • Baujahr
    2025
  • Zustand
    neuwertig
  • Außen­stellplätze
    2
  • Verfügbar ab
    sofort
  • Käufer­provision
    2,975 % inklusive Umsatzsteuer
  • Kaufpreis
    499.500 EUR

Ausstattung / Merkmale

  • ✓ Kein Keller
  • ✓ Separates WC
  • ✓ Terrasse

Energieausweis

  • Energieausweistyp
    Bedarfs­ausweis
  • Gültig bis
    01.10.2035
  • Gebäudeart
    Wohngebäude
  • Baujahr lt. Energieausweis
    2025
  • Primärenergieträger
    Umweltwärme
  • Endenergie­bedarf
    41,58 kWh/(m²·a)
  • Energie­effizienz­klasse
    A
0 25 50 75 100 125 150 175 200 225 250+ H G F E D C B A A+ H G F E D C B A A+ Endenergiebedarf 41,50 kWh/(m²·a)

Objekt­beschreibung

Beschreibung

Diese modern errichtete Neubau-Doppelhaushälfte in Rostock bietet jungen Familien mit und ohne Kindern genau das, was heute wichtig ist: durchdachte Grundrisse, energieeffiziente Technik und ein bezugsfertiges Zuhause ohne Baustress.

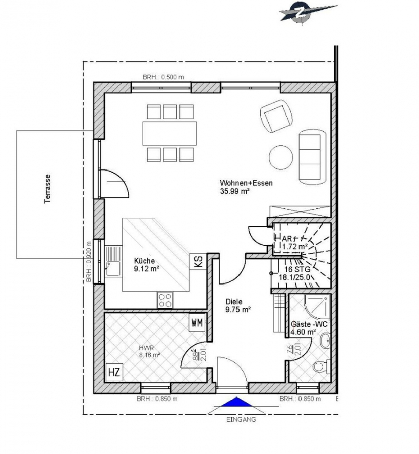
Auf rund 130 m² Wohnfläche verteilen sich ein großzügiger Wohn‑/Essbereich mit offener Küche, ein Gäste-WC, ein Hauswirtschaftsraum sowie drei gut geschnittene Schlafzimmer im Obergeschoss – ideal für Elternschlafzimmer, zwei Kinderzimmer und ggf. Homeoffice. Das Grundstück mit ca. 375 m² bietet genügend Platz zum Spielen im Garten, für Terrasse, Sandkiste & Co.

Die Terrasse und der Garten sind nach Südwesten ausgerichtet und bieten viele Sonnenstunden bis in den Abend hinein – perfekt für Familienzeit im Freien. Die Außenanlagen und der Garten sind bewusst noch nicht vollständig angelegt. So sparen Käufer die entsprechenden Baukosten und können im Frühjahr ihren Garten ganz nach eigenen Wünschen gestalten – von der Terrasse über Hochbeete bis hin zum Spielbereich für die Kinder.

Das Haus wurde 2025 fertiggestellt und ist sofort bezugsfrei. Als Käufer eines Neubaus profitieren Sie von moderner Bauweise, aktueller Haustechnik und 5 Jahren Gewährleistung – ohne Sanierungsstau und ohne Bau-Risiko. Hier heißt es: Einziehen, Möbel stellen und den Rest Schritt für Schritt nach eigenen Vorstellungen gestalten.

Ausstattung

Die 2025 fertiggestellte Neubau-Doppelhaushälfte bietet eine hochwertige, moderne Ausstattung und ist sofort bezugsfertig. Außenmauerwerk aus 36,5 cm Porenbeton in Kombination mit Kalksandstein-Innenwänden sorgt für sehr guten Wärme- und Schallschutz. Dreifach verglaste Fenster mit zweifarbigem Profil sowie Naturstein-Fensterbänke unterstreichen den Qualitätsanspruch.

Im gesamten Wohnbereich ist ein heller, moderner Vinylboden verlegt, der angenehm, pflegeleicht und zeitlos ist – ideal für den Familienalltag mit Kindern. Beheizt wird das Haus über eine effiziente Luft-Wasser-Wärmepumpe (Vaillant) mit Fußbodenheizung im Erd- und Obergeschoss, im Bad zusätzlich mit Handtuchheizkörper. Zwei moderne, ebenerdige Duschen mit Edelstahlrinne und Glasduschwänden, hochwertige Fliesen in Bädern und Hauswirtschaftsraum, Vorwandinstallationen, zwei Waschbecken und zwei WCs runden den Sanitärbereich ab. Innenputz in Gips (in den Bädern Kalkzement) sowie Malerarbeiten in Q4 mit Malervlies sorgen für ein sehr gepflegtes, zeitgemäßes Erscheinungsbild.

Der Dachboden ist begehbar, mit OSB beplankt, verfügt über Stromanschluss und ein Dreiecksfenster und ist ausbaufähig. Für E-Mobilität ist ein Erdkabel für eine Wallbox vorbereitet, zusätzlich ein Stromanschluss für die Außenanlage. Eine Regenzisterne unterstützt die Gartenbewässerung.

Garten und Außenanlagen sind bewusst noch nicht fertig angelegt – so sparen Käufer Kosten und können die Gestaltung im Frühjahr ganz individuell nach eigenen Wünschen umsetzen. Die sonnige Südwest-Ausrichtung von Terrasse und Garten bietet viele Sonnenstunden bis in den Abend und macht den Außenbereich zu einem idealen Ort für Familienzeit im Freien.

Sonstiges

Unser Service für Sie als Eigentümer: Wir bewerten Ihre Immobilie kostenfrei und unverbindlich und stehen bis zum erfolgreichen Verkauf als Partner an Ihrer Seite. IPN IMMOBILIEN steht als inhabergeführtes Maklerunternehmen mit seinen Mitarbeitern und Kollegen für die Werte Verlässlichkeit, Diskretion und Seriosität. Nehmen Sie einfach Kontakt mit uns auf oder kommen Sie vorbei. Wir freuen uns auf das Gespräch mit Ihnen.

Alle Angaben sind ohne Gewähr und basieren ausschließlich auf Informationen, die uns vom Auftraggeber / Verkäufer übermittelt wurden. Wir bitten daher um Verständnis, dass wir keine keine Gewähr für die Vollständigkeit, Richtigkeit und Aktualität dieser Angaben übernehmen können.

Lage

Die Doppelhaushälfte befindet sich in ruhiger, familienfreundlicher Lage von Rostock im Wohngebiet „Musknips“. Das Umfeld ist geprägt von moderner Einfamilien- und Doppelhausbebauung mit wenig Verkehr – ideal für junge Familien mit Kindern.

Kindergarten, Schulen sowie Einkaufsmöglichkeiten für den täglichen Bedarf sind in wenigen Fahrminuten erreichbar. Bushaltestellen bzw. der Anschluss an den ÖPNV sorgen für eine gute Anbindung in die Rostocker Innenstadt. Auch die Ostsee und die umliegenden Naherholungsgebiete sind schnell erreichbar und bieten eine hohe Lebensqualität in der Freizeit.

Durch die Lage innerhalb Rostocks profitiert man zudem von einer guten Infrastruktur mit Ärzten, Apotheken, Supermärkten und diversen Freizeitangeboten, während man zu Hause dennoch ruhig und im Grünen wohnt. Die nach Südwesten ausgerichtete Terrasse und der Garten unterstützen das angenehme Wohngefühl mit vielen Sonnenstunden.

Direktanfrage

* Pflichtangaben
 SSL-verschlüsselt
Immobiliendaten-Import und Darstellung für WordPress: WP-ImmoMakler