Zentrale Büro- und Praxisfläche mit 125 m² und 2 TG-Stellplätzen in Rostock

18055 Rostock, Bürofläche zur Miete

Virtueller Rundgang

Kontaktdaten

Christian Konarski, IPN Immobilien GmbH

Objektdaten

  • Objekt-ID
    1900
  • Objekttypen
    Büro/Praxis, Bürofläche
  • Adresse
    Rungestr. 17
    18055 Rostock
  • Etage
    3
  • Bürofläche ca.
    125 m²
  • Gesamtfläche ca.
    125 m²
  • Zimmer
    5
  • Baujahr
    2002
  • Zustand
    gepflegt
  • Stellplätze
    Stellplatzmiete: 125,00 EUR (Anzahl: 2)
  • Verfügbar ab
    sofort
  • Kaution
    5.100,00 EUR
  • Nettokaltmiete
    1.875,00 EUR
  • Kaltmiete
    1.875,00 EUR
  • Summe Miete netto
    1.875,00 EUR
  • Nebenkosten
    310,00 EUR
  • Heizkosten
    120,00 EUR
  • Warmmiete
    2.130,00 EUR

Ausstattung / Merkmale

  • ✓ DV-Verkabelung
  • ✓ Personenaufzug
  • ✓ Stellplatz
  • ✓ Teppichboden

Objekt­beschreibung

Beschreibung

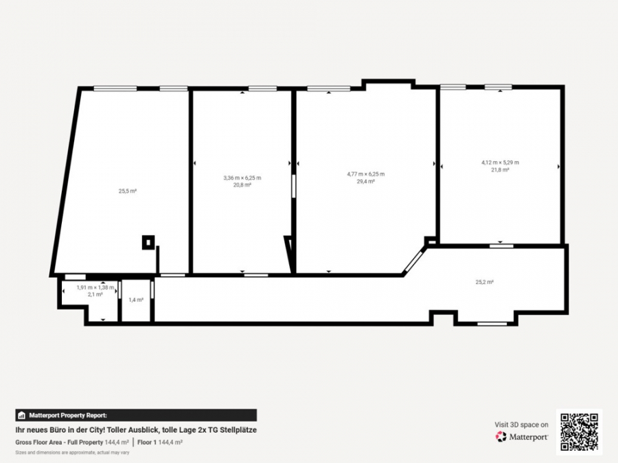
Diese funktionale Büro- und Praxisfläche im 3. Obergeschoss besticht durch ihre erstklassige Innenstadtlage. Auf insgesamt ca. 125 m² verteilen sich vier helle Büroräume sowie eine großzügige interne Fläche, die ideal als Lager oder Aufenthaltsraum genutzt werden kann. Die Einheit verfügt über einen klassischen Gewerbeausbau mit abgehängten Akustikdecken, integrierter Rasterbeleuchtung und einem blauen Teppichboden. Ein besonderes Highlight ist der kleine französische Balkon mit Blick auf den Hopfenmarkt. Die technische Ausstattung umfasst eine umfangreiche IT-Verkabelung (Glasfaser vorhanden) sowie Bodenauslässe. Zur Einheit gehören zudem zwei wertvolle Tiefgaragenstellplätze.

Ausstattung

  • Glasfaser und IT-Verkabelung
  • Teppichboden
  • Fahrstuhl

Sonstiges

Unser Service für Sie als Eigentümer: Wir bewerten Ihre Immobilie kostenfrei und unverbindlich und stehen bis zum erfolgreichen Verkauf als Partner an Ihrer Seite. IPN IMMOBILIEN steht als inhabergeführtes Maklerunternehmen mit seinen Mitarbeitern und Kollegen für die Werte Verlässlichkeit, Diskretion und Seriosität. Nehmen Sie einfach Kontakt mit uns auf oder kommen Sie vorbei. Wir freuen uns auf das Gespräch mit Ihnen.

Alle Angaben sind ohne Gewähr und basieren ausschließlich auf Informationen, die uns vom Auftraggeber / Verkäufer übermittelt wurden. Wir bitten daher um Verständnis, dass wir keine keine Gewähr für die Vollständigkeit, Richtigkeit und Aktualität dieser Angaben übernehmen können.

Lage

Zentrale City-Lage in Rostock mit Blick auf den Hopfenmarkt und historische Architektur. Die Immobilie befindet sich in der Rungestraße 17.

Direktanfrage

* Pflichtangaben
 SSL-verschlüsselt
Immobiliendaten-Import und Darstellung für WordPress: WP-ImmoMakler